全国spa的论坛,上海干磨水磨论坛,2025年老哥论坛51一品茶楼,深圳布吉佳丽-春风阁

当前位置: 主页 > 知识与标准 > 臭氧知识 > 臭氧间环境要求及安装前注意事项

臭氧间环境要求及安装前注意事项

臭氧间环境要求及安装前注意事项

摘要

臭氧间环境要求及安装前注意事项 1、设备应存放在干燥、清洁、通风良好的房间内。对于短期露天存放和运输时应加盖雨布,且设备不应与地面直接接触。设备间应远离尘源、腐蚀性

更新时间:2020-04-07
来源:m.e13u.cn
作者:同林科技
浏览:
关键词: 湿热环境 臭氧尾气处理系统 臭氧实验设备 印染废水脱色实验 常见故障 运维 电晕放电式 测量方法 泳池水处理 臭氧投加量计算 游泳池臭氧消毒 标准泳池 臭氧技术 关键因素 处理效果 臭氧水生成设备 臭氧水实验 臭氧反应时间 臭氧净水工艺 臭氧去除异味 臭氧消毒实验 臭氧饮用水 80g/h 超滤膜曝气 耐高压 臭氧产量区别 抗生素废水降解处理 水处理应用 微细气泡技术 药物合成反应 臭氧特性 MBE 分子束外延 臭氧源 实验室臭氧发生器 显示屏 Atlas-H30 二手臭氧发生器 BMT 802N 空气气源 氧气气源 臭氧尾气破坏装置 ALD设备 分解效率装置 苏伊士 首创集团 臭氧除杂 原理与机制 杂质 碳酸锂浆料 臭氧发生器PLC 3S-J5000臭氧检测仪 3S-KW 管道式 去除新兴污染物 洗车业务 臭氧去除氨 臭氧高级氧化工艺 酚类物质 负压臭氧发生器 臭氧微气泡曝气 清华大学 臭氧化反应 ald臭氧 200g臭氧发生器 菲律宾 海水养殖尾水 微通道 CVD 微通道反应器 工业臭氧解决方案 实验室高压臭氧 Apex P30臭氧设备 微通道膜反应 高压臭氧发生器 选型指南 《环境空气质量标准》 锂电池 臭氧粮仓害虫消杀系统 清洗杀菌 水产品 电耗 O3暴露 臭氧发生一体机 杀菌潜力 低浓度臭氧 风冷 功率 纯臭氧发生器 明电舍 MEIDEN 臭氧清洗 3S-H20 臭氧在水再利用 井水处理 氰化物 臭氧溶解度 瓶装饮用水 游泳池消毒
详细介绍相关案例

臭氧间环境要求及安装前注意事项

1、设备应存放在干燥、清洁、通风良好的房间内。对于短期露天存放和运输时应加盖雨布,且设备不应与地面直接接触。设备间应远离尘源、腐蚀性物质源;远离高温、潮湿环境;远离振动源;房间通风采光良好。房间高度应满足设备安装维修需要。房间温度5-30℃左右,湿度<85%,避免机房内的温度过高是设备正常运行的可靠保障。设备间内禁止使用爆炸性物质、易燃气体、腐蚀性气体及有机溶剂。

2、地面坚固、平整,不易起灰尘。四壁应抹平,顶部应坚固,不得漏雨、落灰。地面很好有排水沟或排水地漏。

3、设备就位时应按照平面布置图位置摆放、找平找正。要求横向水平度不大于1mm/m,纵向水平度不大于1mm/m。水平度用水平尺找正。设备找水平可使用金属垫片调整。


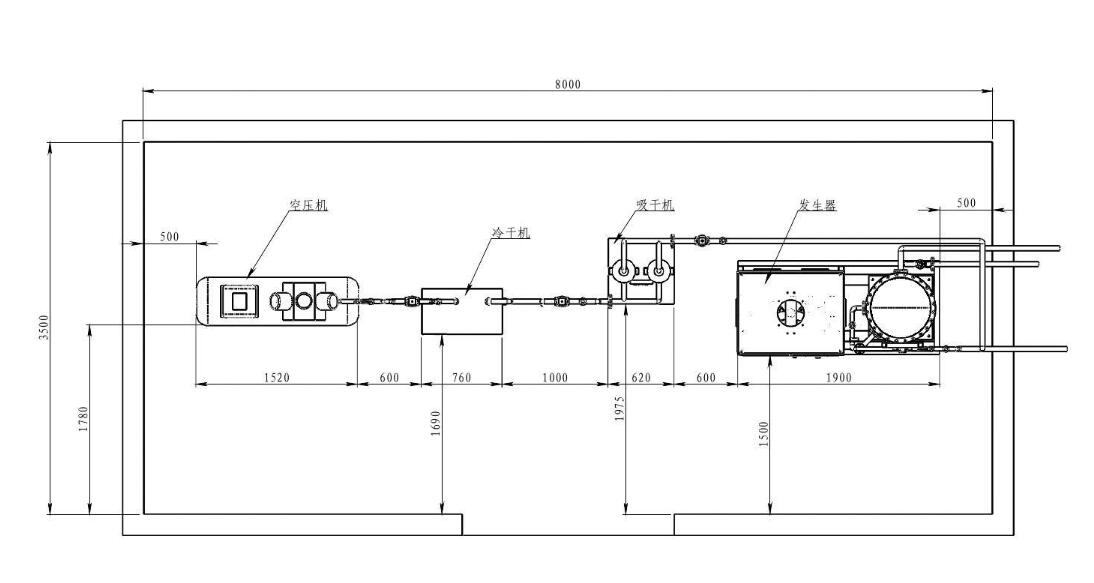
此图臭氧间尺寸仅供参考,臭氧产量不同,机器大小不同,臭氧间尺寸也不同
 

4、臭氧发生器及配套设备出厂时是完整设备,未经本公司许可任何人、单位不得随意拆卸设备配件、仪表阀门及管路等附件。必须保持设备的完整性。我方调试人员发现安装施工方存在以上现象时,要求安装施工方无条件复原设备,否则不予进行设备调试。

5、设备包装在就位安装时暂不拆除。除包装底座、设备接口处包装外,其余部分包装应待安装结束开始调试前拆除。避免就位安装时损伤设备外表面。

6、压缩空气管路,臭氧发生器前末级过滤器后管路、氧气和臭氧管路均采用316L材质无缝管。如果从主管道引分支供气管时,接口应安装在主管道的上部,避免将冷凝水引入设备。

7、设备间安装进气栅和通风口(通风管过长时加引风机)时应注意避免造成压缩机、冷干机冷却空气的回流。进气栅应处于墙壁下部,通风口应处于空气对流处墙壁上部。

8、空压机、冷干机、储气罐、过滤器的排水管出口不得浸入水中,冷凝水应能靠重力自然排放。

9、设备、设备与墙壁和设备之间应留有安装维修空间,管路高度应便于仪表阀门安装维修及人员穿行,发生室端口外应留足够空间便于放电体抽出维护。设备间内预留一路自来水管线,便于设备维修后的清洗。

10、设备连接管路附件标准不得低于设备管路附件,压缩空气管路法兰密封垫圈可以采用石棉垫圈,氧气及臭氧管路法兰密封垫圈采用四氟垫圈。法兰中心应与管道中心对中焊接。

11、动力电缆、高压电缆不得与信号电缆一同布置,应分开铺设,避免干扰。

12、动力电缆、气管路、水管路水平布置有交叉时应不同高度安装且保持一定距离,原则上由高至低顺序是电缆、气管路、水管路。